Betreutes_Wohnen1_Header.jpg

Betreutes Wohnen Altenburger Straße in Jena

DRK-Kreisverband Jena-Eisenberg-Stadtroda e.V.: Grit Fäßler, Ansprechpartnerin Betreutes Wohnen Altenburger Straße in Jena

Kontakt

Betreutes Wohnen
Altenburger Straße

Koordinatorin
Grit Fäßler


Altenburger Straße 3
07743 Jena

Tel. 03641 356 17 00
senioren.altenburgerstrasse@drk-jena.de


Mietverhältnis

JOS - Jenaer Objektmanagement und Servicegesellschaft mbH
Leonard Kühn

Dammstraße 32
07749 Jena

Telefon 03641 400 221
Mobil 01515 381 65 28
hausverwaltung@jos-gmbh.de

www.jos-gmbh.de

Wer älter wird, weiß Hilfe zu schätzen. Daher bietet unser DRK-Kreisverband Senioren mit oder ohne Pflegegrad 48 gepflegte barrierefreie Ein- und Zwei-Raumwohnungen in der Altenburger Straße 3 in Jena an.

Hier kann man in Sicherheit und Selbstbestimmung in den eigenen vier Wänden gut betreut im Verbund mit Gleichgesinnten leben. Gern vermitteln wir auch professionelle Serviceleistungen, die nach Bedarf abgerufen werden können.

Von Montag bis Freitag besteht die Möglichkeit, im Haus gemeinsam Mittag zu essen. Anmeldungen können bis spätestens 16 Uhr des Vortages abgegeben werden.

Eine soziale Betreuungskraft steht allen Bewohnern montags bis freitags von 10-16 Uhr zur Verfügung. Sie ist Ansprechpartnerin für alle Fragen und organisiert zudem gemeinsame Aktionen.

Wenn Sie Interesse an unserem Konzept des Betreuten Wohnens haben, dann melden Sie sich bitte bei uns!

Grundrisse

 
Typ A
  • Wohnraum
  • Schlafraum
  • Balkon
  • Küche
  • Bad
  • Flur
  • Abstellraum

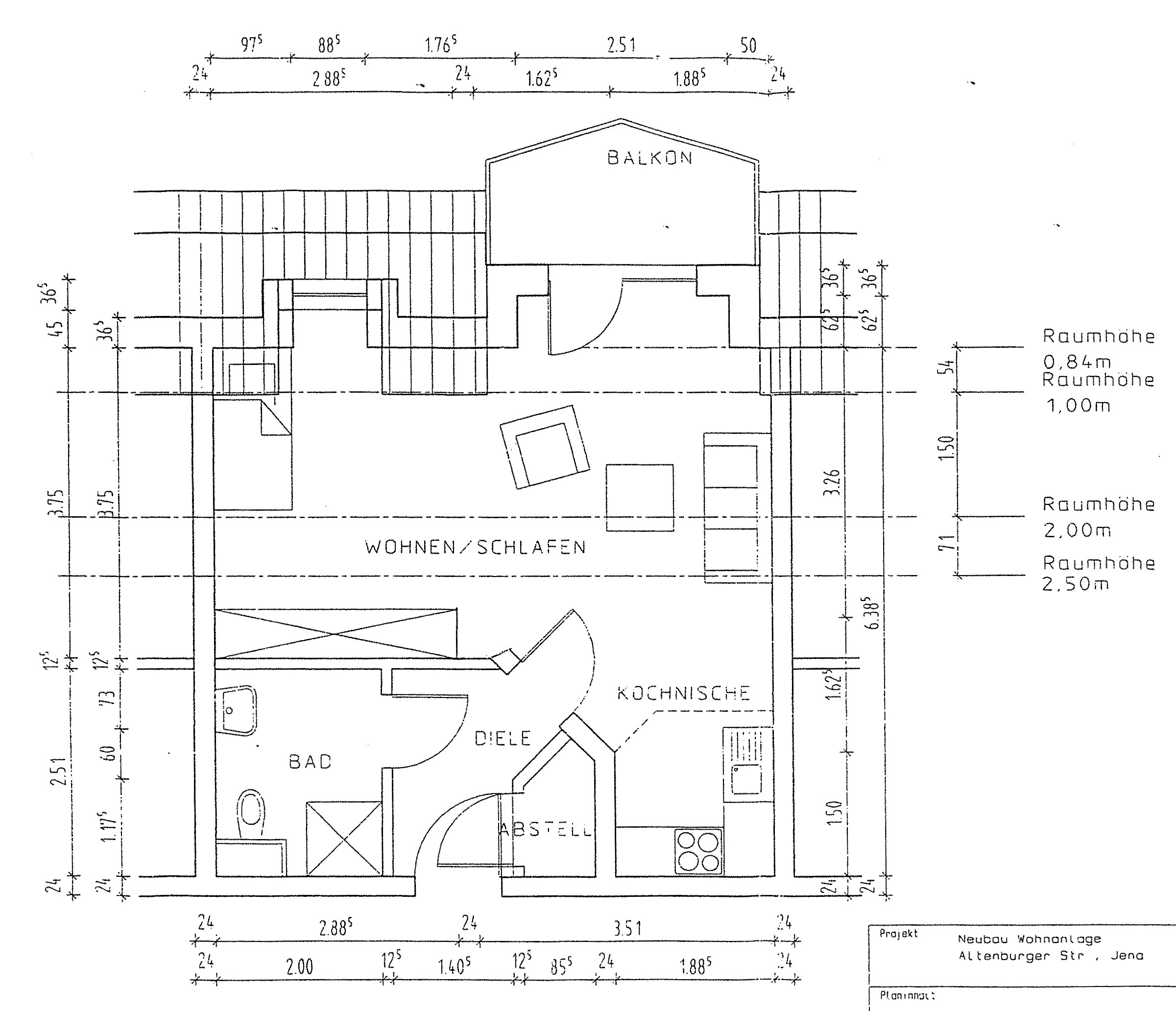
Typ B Dachgeschoss

  • Wohn-/ Schlafraum
  • Balkon
  • Kochnische
  • Bad
  • Flur
  • Abstellraum

Typ B

  • Wohnraum
  • Schlafraum
  • Balkon
  • Kochnische
  • Bad
  • Flur
  • Abstellraum

Typ C

  • Wohnraum
  • Schlafraum
  • Balkon
  • Küche
  • Bad
  • Flur
  • Abstellraum